FTTX Fiber Optic Cabinet Package Type 4X Dual AC, 50x30x44, Lt Gray, AL
Hover to magnify image or click to enlarge
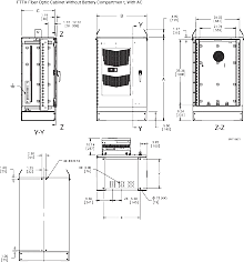
FTTX Fiber Optic Cabinet Package Type 4X Dual AC, 50x30x44, Lt Gray, AL
Catalog#: T503044FTTXDASA
Pad-mounted FTTX welded aluminum enclosures provide longlasting protection and manage fiber optic cable for broadband delivery in outdoor applications. Provided with or without back-up batter compartment.
Industry Standards
UL 508A Listed; Type 3, 3R, 4, 4X, 12; File No. E61997
NEMA/EEMAC Type 3, 3R, 4, 4X, 12
EC60529, IP66
Designed to meet Telcordia NEBS™ GR-487, GR-63 and IEC 48D
EIA 310-D with 19-in. spacing for rack equipment
Cabinet is RoHS compliant
NEBS™ is a trademark of Telcordia
Thanks for your submission. A customer service agent will be in touch soon to help you further.
Details
Resources
CAD
Related Accessories
Additional Product Details
Features
- Standard pitched roof promotes water runoff
- Available with either single- or dual-access doors on front and rear for convenient access
- Available with or without battery compartment
- 3-point latching mechanisms and padlocking handles on doors provide security
- Seamless foam-in-place gasket seals doors against moisture and dust
- Wind latch mechanisms on doors control door when open for equipment maintenance
- Removable lifting lugs (2) for easy installation
- Rack angles adjustable for 19- or 23-inch spacing without modifications
- Use cage nuts to mount equipment
- Cabinet top insulation helps prevent the formation of condensation and reduce solar gain inside cabinet. Cabinet side insulation is optional
- Base of cabinet has a 5.00-inch (127-mm) high aluminum mounting plinth to allow for cable alignment
- Three pyramidal boots provided at base of cabinet for sealing various sizes of cables
- All fasteners are stainless steel to maintain professional appearance in severe outdoor climate conditions
Specifications
PRODUCT ATTRIBUTES
Approval Agency Certificate
Installation Manual / Instruction Sheet
Additional Product Details
Bulletin Number
- Warning
- nVent products shall be installed and used only as indicated in nVent's product instruction sheets and training materials. Instruction sheets are available at www.nvent.com and from your nVent customer service representative. Improper installation, misuse, misapplication or other failure to completely follow nVent's instructions and warnings may cause product malfunction, property damage, serious bodily injury and death and/or void your warranty.